Skip to content Skip to sidebar Skip to footer

blue bird wiring diagram Bluebird wiring schematic

Bluebird Wiring Schematic and Diagrams If you own a Bluebird Bus, then you know how important it is to have access to wiring schematics and diagrams. Whether your bus is your home on the road or your business vehicle, it is important to have reliable and efficient electrical systems. This is why we have gathered information on Bluebird wiring schematics to help you maintain and repair your bus's electrical system. The first wiring diagram we found is of the Bluebird Wiring Schematic. This schematic provides a detailed view of the electrical circuits in a Bluebird bus. The diagram shows each component of the electrical system, including the battery, alternator, starter, relays, fuses, and switches. By using this schematic, you can easily identify the location of each component and its connections. This makes troubleshooting and repairing electrical problems much easier. The second wiring diagram we found is the 28 Blue Bird Bus Wiring Diagram. This diagram shows the wiring system of a 1995 Bluebird bus. It contains detailed information on the electrical system, including the battery, alternator, starter, relays, fuses, and switches. This diagram shows the wiring configuration of each component and the connections between them. It also provides a legend for each color of wire used in the system. Using these wiring diagrams can help you in several ways. First, it can help you to identify and diagnose electrical problems. Second, it can help you to understand how the electrical system in your Bluebird bus works. Finally, it can help you to make modifications or upgrades to the electrical system. When working with electrical systems on your Bluebird bus, it is important to follow safety guidelines. Make sure to wear rubber-soled shoes, use insulated tools, and take any necessary precautions to prevent electrical shock. Always disconnect the battery before working on any electrical system. If you are unsure about any aspect of the electrical system, it is best to consult with a professional electrician. In conclusion, having access to reliable wiring schematics and diagrams can be invaluable when maintaining or repairing the electrical system in your Bluebird bus. Make sure to use these diagrams safely and follow any precautions to prevent injury or damage to the electrical system. With proper maintenance and care, your Bluebird bus can provide many years of reliable service.

If you are searching about Bluebird Wiring Schematic you've visit to the right web. We have 3 Images about Bluebird Wiring Schematic like Bluebird Wiring Schematic, 28 Blue Bird Bus Wiring Diagram - Wiring Database 2020 and also 28 Blue Bird Bus Wiring Diagram - Wiring Database 2020. Here you go:

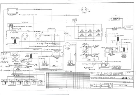
Bluebird Wiring Schematic

Bluebird Wiring Schematic hestiahelper.blogspot.com

bluebird kenworth diagrams w900

Bluebird Wiring Schematic

Bluebird Wiring Schematic hestiahelper.blogspot.com

28 Blue Bird Bus Wiring Diagram - Wiring Database 2020

28 Blue Bird Bus Wiring Diagram - Wiring Database 2020 rachelleogyaz.blogspot.com

wiring diagram diagrams bluebird 1995 bus bird blue autozone repair 4runner wire 1993 guides engine intended school cylinder inluded mess

Bluebird wiring schematic. Wiring diagram diagrams bluebird 1995 bus bird blue autozone repair 4runner wire 1993 guides engine intended school cylinder inluded mess. Bluebird wiring schematic


Post a Comment for "blue bird wiring diagram Bluebird wiring schematic"